ARDENNEN 6890 ANLOY : BOUWGRONDEN VOOR VRIJSTAANDE WONING.
ANLOY
Mooi gelegen bouwgronden in een rustig dorpje nabij Libin en de E411.

Voor vrijstaande woningen.

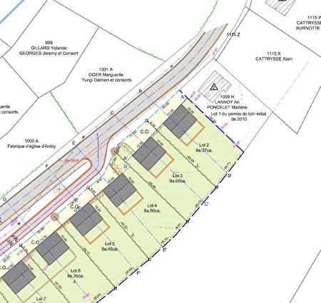
LOT 2 : 8a 37ca
Oriëntatie perceel : OOST
Breedte perceel : +- 20,03 meter
Diepte perceel : +- 40,24 à 43,45 meter

LOT 3 : 9a 05ca
Oriëntatie perceel : OOST
Breedte perceel : +- 20,36 meter
Diepte perceel: +- 43,45 à +- 45,48 meter

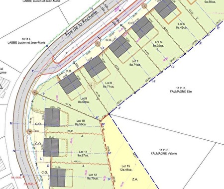
LOT 10 : 8a 56ca
Oriëntatie perceel : OOST
Breedte perceel : +- 26,68 meter
Diepte perceel: +- 47,78 à +- 59,50 meter

Water en elektriciteit zijn aanwezig in de straat.
Geen openbare riolering, individueel zuiveringsstation te voorzien.

Gunstige ligging in rustig dorpje nabij Libin (winkels, scholen, …), Libramont (ziekenhuis, winkels en supermarkten, station / openbaar vervoer) en de E411.

Vraagprijs: 80.000 € per perceel
De bovenvermelde informaties en oppervlakten zijn indicatief en niet bindend.

Aarzel niet om contact met ons op te nemen voor meer informatie.
Ard’Immo & Conseils – 6880 BERTRIX
061/611.222 – 0491/25.98.89 - 0474/88.56.10 – immo@ardimmoc.be – www.ardimmoc.be
prijs : 80000 €
  stuur een berichtje
  toon nummer