ARDENNEN 6970 ORTHEUVILLE : BOUWGROND, 14A 79CA.
TENNEVILLE
Mooi gelegen bouwgrond met een oppervlakte van 14 are en 79 centiare, voor een vrijstaande woning.

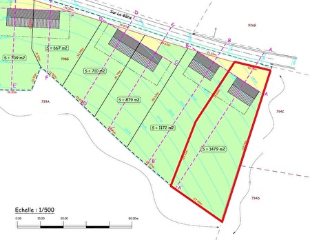
LOT 7 : 14a 79ca
Oriëntatie achteraan : ZUID
Breedte perceel : +- 21,32 meter
Diepte perceel : +- 50,69 à 60,81 meter
Water en elektriciteit zijn aanwezig in de straat.
Geschikt voor het bouwen van een vrijstaande woning.

Gustige ligging met mooi vrij uitzicht, in een straat met weinig doorgaand verkeer nabij de N4 en toeristische plekken zoals Bastogne, Saint-Hubert, La Roche, …

Vraagprijs: 105.000 €
De bovenvermelde informaties en oppervlakten zijn indicatief en niet bindend.

Aarzel niet om contact met ons op te nemen voor meer informatie.
Ard’Immo & Conseils – 6880 BERTRIX
061/611.222 – 0491/25.98.89 - 0474/88.56.10 – immo@ardimmoc.be – www.ardimmoc.be
prijs : 105 000 €
  stuur een berichtje
  toon nummer