ARDENNEN 6997 EREZéE : BOUWGROND, 10A 13CA.
EREZéE
ARDENNEN: Provincie Luxemburg
6997 EREZEE

Mooi gelegen bouwgrond van 10 are en 13 centiare, met een zeer mooi uitzicht, gelegen nabij het centrum van Erezée.

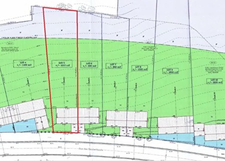
LOT 5: 10a 13ca
Straatbreedte: +- 13,02 meter
Diepte: +- 65 à +- 67 meter
Oriëntatie achteraan: westen.

Water en elektriciteit zijn aanwezig in de straat.
Geen openbare riolering, individueel zuiveringsstation te voorzien.

Zeer mooie ligging nabij het centrum en de winkels, scholen, restaurants, …
De gemeente Erezée is gelegen in het noorden van de provincie Luxemburg, nabij enkele toeristische trekpleisters zoals Durbuy, La Roche, Hotton of Baraque de Fraiture.

Vraagprijs: 65.000 €

De bovenvermelde informaties en oppervlakten zijn indicatief en niet bindend.

Aarzel niet om contact met ons op te nemen voor meer informatie.
Ard’Immo & Conseils – 6880 BERTRIX
061/611.222 – 0474/88.56.10 – 0491/25.98.89 – immo@ardimmoc.be – www.ardimmoc.be
prijs : 65000 €
  stuur een berichtje
  toon nummer